进口电子式电动三通调节阀
德***莱克阀门中***总代理-germany lik valves international
产品介绍
调节阀又名控制阀是过程控制系统中用动力操作去改变介质流量、压力、温度、液位等工艺参数的 终控制元件。调节阀由执行机构和阀体部件组成,产品类型很多,结构多种多样,而且还在不断地更新和变化。 般来说,阀体是通用的,即可以和气动执行器匹配,也可以与电动执行机构或其它执行机构匹配使用。
调节阀可分为直行程和角行程;按其所配执行机构使用的动力,按其功能和特性分为线性特性,等百分比特性及抛物线特性三种。调节阀适用于空气、水、蒸汽、各种腐蚀性介质、泥浆、油品等介质。
产品详情
德***莱克LIK品牌-进口电子式电动双座调节阀是由3610L型电子式电动执行机构和双座调节机构组成。电动执行机构内有伺服系统,无须另配伺服放大器,有输入讯号及电源即可控制运转,连线简单,调节机构具有不平衡很小,允许压差,大流通能力大等特点,适用于泄漏量要求不严格的场合。
电子式电动双座调节阀主要技术参数和性能指标
进口电子式电动三通调节阀机构主要技术参数
|
公称通径mm
|
25
|
32
|
40
|
50
|
65
|
80
|
100
|
125
|
150
|
200
|
250
|
300
|
|
额定流量系数kv
|
10
|
16
|
25
|
40
|
63
|
100
|
160
|
250
|
400
|
630
|
100
|
1600
|
|
公称压力(MPa)
|
1.6 4.0 6.4(常温),4.0 6.4(中温),0.6 4.0 6.4(低温)
|
|
行程(mm)
|
16
|
25
|
40
|
60
|
100
|
|
动作速度mm/s
|
2.1
|
3.5
|
1.7
|
3.4
|
2.0
|
|
配用电动执行机构型号
|
361LSA-20
361LXA-20
|
361LSB-30
361LXB-30
|
361LSB-50
361LXB-50
|
361LSC-65
|
361LSC-99
|
|
流量特性
|
直线,等百分比
|
|
介质温度℃
|
-20℃~+200、-40~+250(常温) -40~+450(中温) -250~-60(低温)
|
|
法兰尺寸
|
铸铁法兰按JB78-59,铸钢法兰按JB79-59
|
|
法兰型式
|
法兰密封型式按JB77-59,铸铁法兰按光滑式,铸钢法兰按凹式,低温按准糟式
|
|
阀
体
材
质
|
公
称
压
力
(MPa)
|
0.6
|
低温:-250℃~-60℃ ZG1r18Ni9Ti
|
|
1.6
|
常温:-20℃~+200℃ Ht200
|
|
4.0
|
常温:-40℃~+200℃ ZG230-450、ZG1Cr18Ni9Ti
|
|
中温:-40℃~-450℃ ZG230-450、ZG1Cr18Ni9Ti
|
|
低温:-250℃~-60℃ ZG1Cr18Ni9Ti
|
|
6.4
|
常温:-40℃~+200℃ ZG230-450、ZG1Cr18Ni9Ti
|
|
中温:-40℃~-450℃ ZG230-450、ZG1Cr18Ni9Ti
|
|
低温:-250℃~-60℃ ZG1Cr18Ni9Ti
|
进口电子式电动三通调节阀执行机构主要技术参数
|
型号
|
额定输出力N
|
速度mm/s
|
技术参数
|
|
361LSA-20
361LXA-20
|
2000
2000
|
2.1
2.1
|
电源:AC220V 50Hz
输入信号:DC4-20mA
DC1-5V
(信号线用屏蔽线)
输出开度信号:DC4~20mA
上盖防护等 :相当IP55
隔爆标志:ExdⅡBT 4
|
|
361LSA-30
361LXA-30
|
3000
3000
|
3.5
3.5
|
|
361LSB-50
361LXB-50
|
5000
5000
|
1.7
1.7
|
|
361LSC-65
|
6500
|
2.8
|
|
361LSC-99
|
10000
|
2.0
|
进口电子式电动三通调节阀性能指标
|
项目
|
指标值
|
|
基本误差%
|
±2.5
|
|
回差%
|
2.5
|
|
死区%
|
1.0
|
|
始终点偏差%
|
电开
|
始点
|
±2.5
|
|
终点
|
±2.5
|
|
电关
|
始点
|
±2.5
|
|
终点
|
±2.5
|
|
额定行程偏差%
|
2.5
|
|
允许泄量L/h
|
10 -3 ×阀额定容量
|
进口电子式电动三通调节阀允许压差
|
公称通径
|
25
|
32
|
40
|
50
|
66
|
80
|
100
|
125
|
150
|
200
|
250
|
300
|
|
允许压差
|
≤公称压力
|
0.4
|
3.4
|
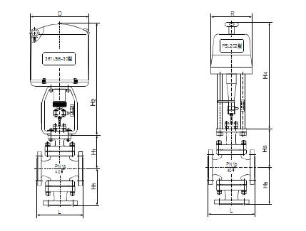
进口电子式电动三通调节阀结构尺寸图

进口电子式电动三通调节阀常、中温型外形尺寸表
|
公称通径
|
L
|
H1
|
H
|
D
|
重量(Kg)
|
|
PN(MPa)
|
常温
|
中温
|
PN1.6
MPa
|
PN4.0,6.4MPa
|
|
1.6
|
4.0
|
6.4
|
常温
|
中温
|
|
25
|
185
|
190
|
200
|
120
|
680
|
830
|
225
|
26
|
30
|
33
|
|
32
|
200
|
210
|
210
|
120
|
683
|
834
|
225
|
28
|
31
|
34
|
|
40
|
220
|
230
|
235
|
140
|
758
|
909
|
225
|
38
|
47
|
51
|
|
50
|
250
|
255
|
265
|
145
|
768
|
919
|
225
|
41
|
51
|
55
|
|
65
|
275
|
285
|
295
|
190
|
989
|
1152
|
225
|
61
|
80
|
88
|
|
80
|
300
|
310
|
320
|
210
|
1022
|
1185
|
225
|
77
|
100
|
110
|
|
100
|
350
|
355
|
370
|
220
|
1044
|
1207
|
225
|
96
|
120
|
131
|
|
125
|
410
|
425
|
440
|
270
|
1336
|
1548
|
310
|
160
|
195
|
244
|
|
150
|
450
|
460
|
475
|
280
|
1358
|
1570
|
310
|
205
|
249
|
269
|
|
200
|
500
|
560
|
570
|
320
|
1436
|
1648
|
310
|
275
|
402
|
435
|
|
250
|
640
|
660
|
670
|
450
|
1707
|
1947
|
310
|
485
|
605
|
665
|
|
300
|
720
|
735
|
750
|
465
|
1767
|
2008
|
310
|
635
|
755
|
825
|
进口电子式电动三通调节阀低温型外形尺寸表
|
公称通径
|
D
|
DN
|
H1
|
-100℃
|
-200℃
|
-250℃
|
重量
(Kg)
|
|
H 2
|
H
|
H 2
|
H
|
H 2
|
H
|
|
25
|
225
|
270
|
290
|
102
|
500
|
1112
|
700
|
1312
|
900
|
1512
|
41
|
|
32
|
225
|
300
|
310
|
105
|
500
|
1118
|
700
|
1318
|
900
|
1518
|
44
|
|
40
|
225
|
310
|
340
|
127
|
500
|
1190
|
700
|
1390
|
900
|
1590
|
62
|
|
50
|
225
|
340
|
370
|
132
|
500
|
1200
|
700
|
1400
|
900
|
1600
|
67
|
|
65
|
225
|
380
|
410
|
171
|
600
|
1463
|
800
|
1663
|
1000
|
1863
|
100
|
|
80
|
225
|
410
|
440
|
188
|
600
|
1489
|
800
|
1689
|
1000
|
1889
|
112
|
|
100
|
225
|
470
|
500
|
200
|
600
|
1505
|
800
|
1705
|
1000
|
1905
|
143
|
|
125
|
310
|
550
|
590
|
250
|
700
|
1842
|
900
|
2042
|
1100
|
2242
|
229
|
|
150
|
310
|
600
|
640
|
260
|
700
|
1852
|
900
|
2052
|
1100
|
2252
|
296
|
|
200
|
310
|
720
|
760
|
300
|
700
|
1892
|
900
|
2092
|
1100
|
2292
|
471
|