来宝网Logo

热门词: 进口电动温度调节阀结构图|进口电动温度调节阀数据表进口电动高温调节阀-德国进口电动高温法兰调节阀进口电动蒸汽调节阀-德国进口电动蒸汽调节阀

江苏碧海 潜水搅拌机 污水搅拌机型号QJB2.2/8-320/3-740

价  格:询价

产  地:江苏 南京市更新时间:2024-12-06 17:35

品  牌:其他型  号:

状  态:正常点击量:1894

400-006-7520
联系我时,请说明是在上海非利加实业有限公司上看到的,谢谢!

上海非利加实业有限公司

联 系 人: 上海非利加实业有限公司

电   话: 400-006-7520

传   真: 400-006-7520

配送方式: 上海自提或三方快递

联系我时请说在上海非利加实业有限公司上看到的,谢谢!




产品参数


产品介绍

 原理及用途

     

适用范围:

搅拌机在下列条件下应能正常连续运行:

1 高介质温度不超过40°C;

2 介质的PH 值在5~9 间;

3 液体密度不超过1150kg/m3;

4 长期潜水运行,潜水深度 般不超过20m。

重点注意事项:

潜水搅拌机必需完全潜入水中工作;不能在易燃易爆或有强腐蚀性液体的环境中工作;钢膨胀螺栓须按要求固定,安装完毕后,必须将电缆拉紧固定好.

潜水推流器选型时,浆叶直径超过2M,建议使用齿轮箱减速机.


                                                                           特点
 

性能特点:

1 结构紧凑、操作维修简单、安装检修方便、使用寿命长;

2 叶轮具有 佳的水力设计结构,工作效率高,后掠式叶片具有自洁功能,可防杂物缠绕、堵塞;

3 与曝气系统混合使用可使能耗大幅度降低,充氧量明显提高,有效防止沉淀;

4 电机绕组 缘等 F ,防护等 为IP68,选用优质轴承和电机防凝露装置,使电机的工作更安全;

5 两道机械密封;

型号表达



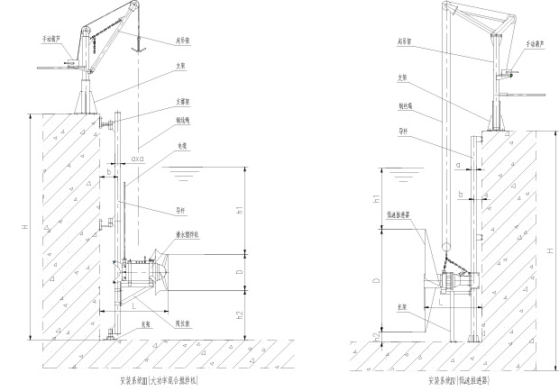
选型安装
 

性能参数:

搅拌机在额定电压380V,频率为50Hz,绕组 缘等 F ,防护等 IP68,工作制式Ⅰ条件下。







 

选型注意事项:

潜水搅拌机的选型是 项比较复杂的工作,选型的正确与否直接影响设备的正常使用,作为选型的原则就是要让搅拌机在适合的容积里发挥充分的搅拌功能, 般可用流速来确定。根据污水处理厂不同的工艺要求,搅拌机 佳流速应保证在0.15~0.3m/s 之间,如果低于0.15m/s 的流速则达不到推流搅拌效果,超过0.3m/s 的流速则会影响工艺效果且造成浪费。所以在选型前 确定潜水搅拌机运用的场所,如:污水池、污泥池、生化池;其次是介质的参数,如:悬浮物含量、粘度、温度、PH 值;还有水池的形状、水深等。搅拌机所需的配套功率是按容积大小、搅拌液体的密度和搅拌深度而确定的,根据具体情况采用 台或多台搅拌机。

混合搅拌型

1 根据图B1 或表B1 确定待搅拌介质的污泥校正系数。

2 根据图B2 或表B2 确定搅拌池的池型校正系数。

3 按每立方米清水所需耗功5 w,乘以污泥校正系数,再乘以池型校正系数,得出每立方米待混合搅

拌介质所需耗功的实际值,再乘以待搅拌介质的体积,得出整池待混合搅拌介质所需的功率。

 

低速推流型

1 根据图B1 或表B1 确定搅拌池的池型校正系数。

2 根据图B2 或表B2 确定待搅拌介质的污泥校正系数。

3 根据搅拌介质初始流速y,通过图B3 确定单位流量的耗功。

4 用搅拌介质初始流速y 乘以叶轮旋转时所形成的截面积计算出搅拌机的流量。

5 用搅拌机的流量乘以单位流量的功耗,再乘以污泥校正系数和池型校正系数,即可得出整池介质所

需的功率。














关于我们客户服务产品分类法律声明