进口电动防爆衬氟球阀
德***莱克阀门中***总代理-germany lik valves international
产品介绍
角行程电动执行机构和O型衬氟球阀阀体组件两大部分组成。阀体内腔及球芯均采用高压注塑工艺衬有耐腐蚀、耐老化的聚全氟乙丙烯(F46),故具有可靠的耐腐蚀性和密封性。电动O型衬氟调节球阀主要适用于化工、医药、食品、造纸、水处理等行业生产过程强腐蚀性介质的调节或切断。
产品特点
1、进口电动防爆衬氟球阀适用做调节流量的阀,具有精确的流量特性。
2、进口电动防爆衬氟球阀适用带有固体物质的苛刻介质(PTFE密封不适用)。
3、进口电动防爆衬氟球阀中轴密封是活动的压块,方便密封的检修。
4、进口电动防爆衬氟球阀连接端无外漏结构设计。
|
外壳
|
防水 别 IP67,NEMA4 and 6
|
|
电机电源
|
110/220V AC 1PH,380/440V AC 3PH, 50/60Hz, ±10%
|
|
控制电源
|
110/220V AC 1PH,50/60 Hz, ±10%
|
|
电机
|
鼠笼式异步电动机
|
|
限位开关
|
2 X 开/关, SPDT,250V AC 10A
|
|
辅助限位开关
|
2 X 开/关, SPDT,250V AC 10A
|
除CHQ-010
|
|
扭距开关
|
开/关 ,SPDT,250V AC 10A
|
除CHQ-010
|
|
行程
|
90°±10°
|
0°~110°
|
|
失速保护/操作温度
|
内置热保护,开150℃ ±5℃ /关 97℃ ±15℃
|
|
指示器
|
连续的位置指示
|
|
手动操作
|
机械离合机构
|
|
自锁装置
|
蜗轮,蜗杆机构提供自锁
|
|
机械限位
|
2个外部调整螺栓
|
|
干燥器
|
7-10W (110/220V AC)防冷凝
|
|
接线孔
|
2个PF 3/4”
|
|
环境温度
|
-20℃--+70℃
|
|
润滑
|
铝基润滑脂(EP 型)
|
|
材料
|
钢,铝合金,铝青铜,聚碳酸脂
|
|
环境温度
|
大90% RH
|
非凝结
|
|
抗震性能
|
X Y Z 10g,0.2~34 Hz,30分钟
|
|
外涂层
|
干粉,环氧聚酯
|
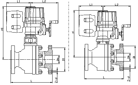
安装尺寸

|
通径DN
|
L
|
L1
|
L2
|
H
|
H1
|
D1
|
Z-d
|
备注
|
|
15
|
130
|
215
|
190
|
348
|
303
|
65
|
4-14
|
CHQ05
|
|
20
|
130
|
215
|
190
|
348
|
308
|
75
|
4-14
|
CHQ05
|
|
25
|
140
|
215
|
190
|
351
|
319
|
85
|
4-14
|
CHQ05
|
|
32
|
165
|
215
|
190
|
358
|
325
|
100
|
4-18
|
CHQ08
|
|
40
|
165
|
215
|
190
|
368
|
330
|
110
|
4-18
|
CHQ08
|
|
50
|
203
|
215
|
190
|
373
|
338
|
125
|
4-18
|
CHQ10
|
|
65
|
222
|
215
|
190
|
394
|
359
|
145
|
4-18
8-18
|
CHQ15
|
|
80
|
241
|
263
|
221
|
437
|
391
|
160
|
8-18
|
CHQ20
|
|
100
|
280
|
263
|
221
|
387
|
413
|
180
|
8-18
8-22
|
CHQ30
|
|
125
|
321
325
|
263
|
221
|
501
|
-
|
210
|
8-18
8-26
|
CHQ40/CHQ50
|
|
150
|
350
403
|
263
|
221
|
540
|
-
|
240
|
8-22
8-26
|
CHQ50/CHQ60
|
|
200
|
400
502
|
263
|
221
|
610
|
-
|
295
|
12-22
12-26
|
CHQ80
|